Душевой уголок квадратный, двери раздвижные 200х100x100, черный матовый

Характеристики

 

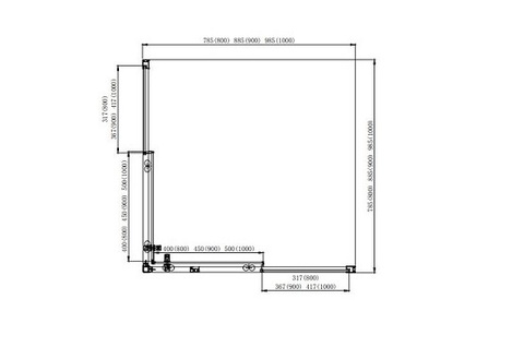
Ширина, см: 100
Высота, см: 200
Глубина, см: 100
Гарантия: 5 лет
Артикул: AQ ARI KV10020BL
Конструкция дверей: раздвижные, квадрат
Толщина полотна двери, мм: 6
Монтаж: с поддоном/без поддона
Материал двери: стекло прозрачное, закаленное
Цвет профиля: Черный
Материал профиля: Алюминий
Антиизвестковое покрытие: да, Easy Clean
Ориентация: универсальная
Поддон в комплекте: нет

Душевой уголок квадратный, двери раздвижные 200х100x100, черный матовый

Ширина, см 100
Бренд Aquatek
Длина, см 100
поддон нет
Перед публикацией отзывы проходят модерацию
Заказ в один клик